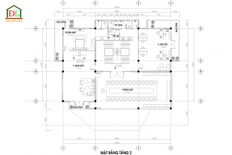
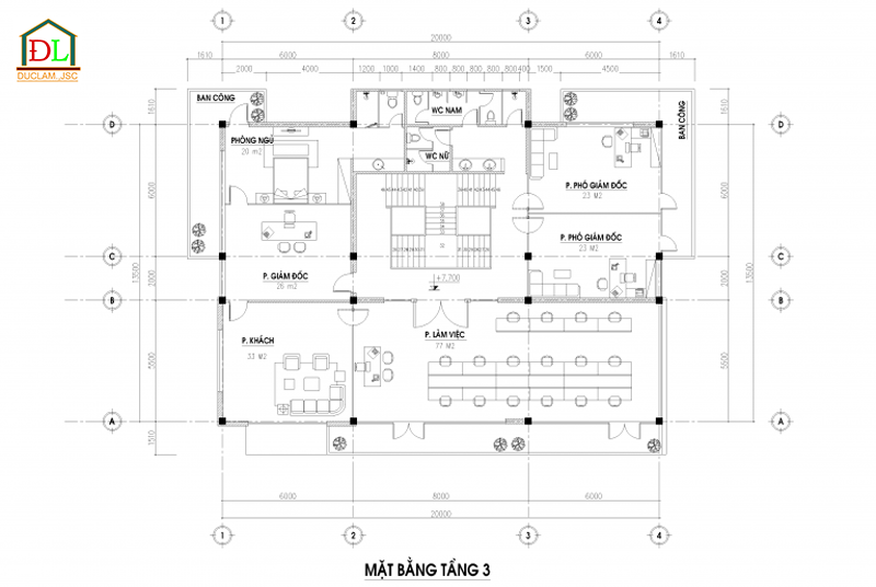
Bản vẽ CAD nhà khung thép 3 tầng giúp bạn biết được thiết kế, hình dạng, kích thước và cách bố trí của các bộ phận tạo nên căn nhà. Dưới đây, mời bạn tham khảo những mẫu thiết kế nhà khung thép 3 tầng chuẩn đẹp. Xem ngay!.

Bản vẽ nhà khung thép 3 tầng chuẩn đẹp 2021
Bản vẽ CAD nhà thép 3 tầng giúp bạn hình dung rõ ràng về thiết kế, hình dáng, kích thước và cách bố trí các bộ phận cấu thành nên ngôi nhà. Sau đây bạn có thể tham khảo các mẫu thiết kế nhà thép 3 tầng đẹp tiêu chuẩn. Xem bây giờ!
Bản vẽ nhà kết cấu thép 3 tầng tiêu chuẩn tinh tế năm 2022
Bản vẽ CAD kết cấu nhà khung thép để bạn sử dụng như một công trình tuyệt vời. Bản vẽ cụ thể, chi tiết, đầy đủ giúp bạn nắm được kiến thức và quy trình thi công cơ khí nhà kết cấu thép.

Nhà khung thép ba tầng là gì?
Xu hướng sử dụng nhà kết cấu thép tiền chế, kết cấu thép dân dụng đã và đang trở thành xu hướng hiện nay, thay thế dần cách xây nhà truyền thống. Do những lợi ích vượt trội và sự dễ dàng và nhanh chóng của việc xây dựng, mở rộng và di dời. Tuy nhiên nói đến mô hình xây dựng này thì không phải ai cũng biết. Vậy chúng ta cùng tìm hiểu nhà 3 tầng kết cấu thép nghĩa là gì?
Nhà thép còn được gọi là nhà thép tiền chế, nhà tiền chế, vì được cấu tạo từ các khung vì kèo thép, sau đó được ghép lại thành các khung thép mà kết cấu của nó vuông góc với nhau.
Nhà 3 tầng kết cấu thép bao gồm cột, dầm sàn và tường là bộ phận chịu lực của toàn bộ công trình và được đẩy xuống phần móng.
Tùy theo nhu cầu của gia chủ và từng gia đình mà nhà thép lắp ghép sẽ được phân chia thành nhiều khu vực khác nhau với công năng sử dụng phù hợp.
Khung thép tiền chế luôn được đúc sẵn, giúp tiết kiệm thời gian thi công và cho phép phá dỡ các công trình cũ bằng khung bê tông truyền thống.
Các bộ phận kết cấu cơ bản của nhà khung thép 3 tầng
- Khung
- Khung cứng
- Khung đầu hồi, cột điện
- Xà gồ, thanh giằng
Đặc điểm của nhà kết cấu thép ba tầng
Tại sao lại gọi mô hình này là nhà khung thép 3 tầng? Vì kết cấu của ngôi nhà là khung thép. Chúng được liên kết với nhau tạo thành khung thép kết cấu thẳng đứng.
Các mẫu thiết kế nhà khung thép được chia thành nhiều tầng khác nhau. Phụ thuộc vào nhu cầu của chủ đầu tư hoặc gia đình.
Thông thường, khung thép sẽ được đúc sẵn để tiết kiệm thời gian thi công. Sử dụng vật liệu khung thép, chúng tôi có thể loại bỏ các khối bê tông lớn.
Làm cách nào để có bản bản vẽ card nhà khung thép 3 tầng đẹp
Khi tìm bản vẽ nhà có hai phương án, thứ nhất là tải trên mạng, nói chung trên mạng có rất nhiều bản vẽ, các kiểu bản vẽ đa dạng, các bạn có thể tải về và chọn bản vẽ theo sở thích của bản thân.
Phương pháp thứ hai là tìm bản vẽ thông qua các trang web về xây dựng. Một số trang web cho phép bạn tải miễn phí
Tìm bản vẽ thông qua đơn vị thi công nhà khung thép 3 tầng giá rẻ
Có một gợi ý nữa là bạn có thể tham khảo trực tiếp tại các đơn vị thi công nhà khung thép. Một đơn vị thi công uy tín luôn muốn đem đến sự hài lòng nhất tới khách hàng. Bạn chỉ cần chia sẻ với họ muốn tham khảo mẫu nhà khung thép 3 tầng trước khi thi công. Bên cạnh đó, các đơn vị thi công uy tín còn tư vấn cho bạn mẫu thiết kế phù hợp nhất với địa thế ngôi nhà
Đơn vị thi công nhà khung thép ở đâu-Mẫu bản vẽ nhà khung thép 3 tầng đẹp
Công ty cổ phần dịch vụ thương mại và xây dựng Đức Lâm là đơn vị thi công nhà khung thép uy tín. Đức Lâm có hơn 10 kinh nghiệm thi công nhà khung thép. Hứa hẹn đáp ứng mọi công trình nhà khung thép trên mọi địa thế.
Một số mẫu nhà 3 tầng khung thép đẹp



Bạn vừa tham khảo bản vẽ CAD nhà khung thép 3 tầng. Hi vọng bạn có thêm thông tin, kinh nghiệm cho mình khi dự định thi công nhà khung thép. Mọi thông tin cần tư vấn thêm về mẫu nhà khung thép hoặc thi công nhà khung thép 3 tầng với giá thành ưu đãi, hãy liên hệ với chúng tôi theo thông tin cuối bài viết